Campi 400 Houseboat Met Ligplaats En Chartermogelijkheid

€ 115.000,-

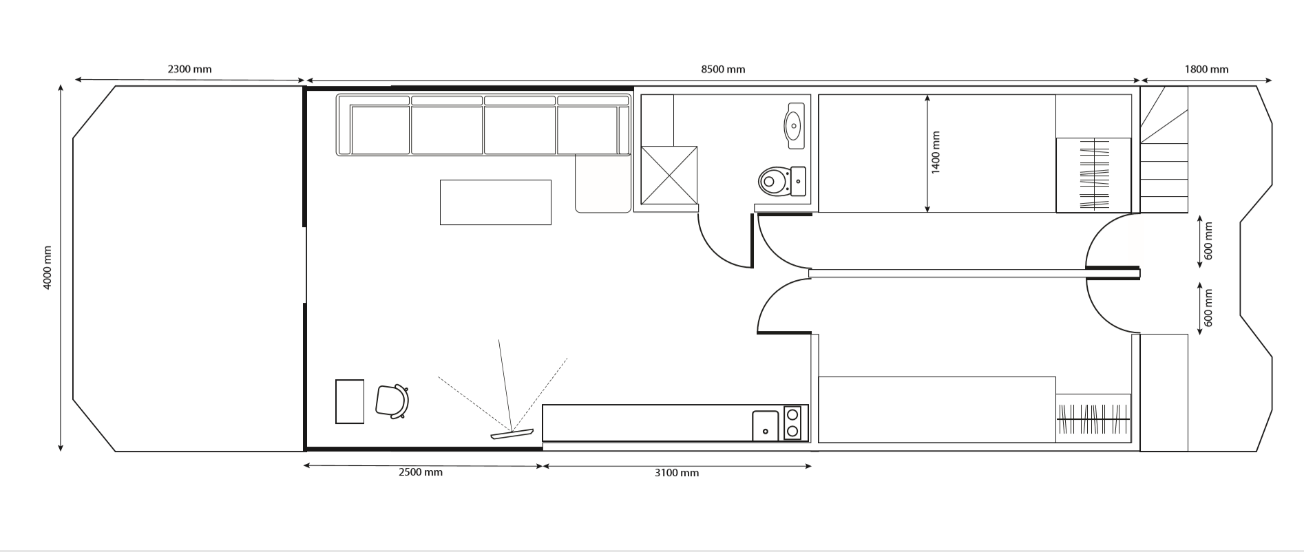
Lengte (m): 12.56
Bouwjaar: 2019
Breedte (m): 4.00

Scheepsmakelaardij Goliath

Omschrijving
Houseboat met mooi ligplaats en eigen steiger voor verhuur geschikt.

Op prachtige plek in Warns, Friesland deze Campi 400 (Happy) te koop met eigen (huur)ligplaats en eigen steiger. De boot kan voor privégebruik gekocht worden maar het is ook mogelijk om de verhuur "Renttoenjoy" voort te zetten. Er is ook een hele mooie La Mare houseboat te koop. De Enjoy. Dus eventueel kunt u twee houseboats kopen op de mooiste plekken van deze haven. Zie onze andere advertentie. Kosten voor de ligplaats liggen maar rond de 2500 ex.btw euro per boot.
Deze Campi 400 heeft mooie verbeteringen ondergaan. Het dak is inmiddels vervangen door een PVC dak. Omvormer is vervangen in 2025 door een Vevor omvormer.

Deze Campi 400 is uitgevoerd met verwarming, warmwater en koken op gas. 

Prijs is exclusief 21% BTW, BTW is nog te verrekenen.

De motoren 2 x 9,9 pk horen bij de boot. 1 motor wordt momenteel gebruikt voor het auto bootje (kever model, zie foto geel of oranje) dat voor maar 7.500,00 erbij gekocht kan worden. (excl. motor) Leuk voor de verhuur!. De motor hoort bij de Campi. De andere 9,9 PK motor is niet gebruikt en opgeslagen.
De mooie trap naar het dakterras is indertijd vervangen door een kunststof trap met houten treden. 
De prijs is inclusief inrichting, zonnepanelen, dakterras, bedden, dekbedden etcetc. Zie de foto's.
Maar exclusief het grote Ligbed op het dakterras.
 

Voor meer informatie kunt u contact opnemen met Terry Bos +31 6 41470689 of Terry@scheepsmakelaardijgoliath.nl

 



Algemeen
Waterverplaatsing: 8500
Overig:

Belangrijke gegevens:
• polytheen drijvers in een gegalvaniseerd stalen frame
• Dubbele glazen ramen
• oorspronkelijke 8x 220AH-batterijen, meterkast.
• 2x brandstof tank: per stuk 40 liter losse tanks
• Zoetwater tank: 400 l met vaste wateraansluiting naar de wal
• Afvalwater tank: 400 l
• Aantal motoren: 2 
• 2x 9,9  pk High Trust Yamaha buitenboord motoren 
• 6x 250 W Zonnepaneel / omvormer 230V, 5kW (2025)
• aangepaste verbeterde trap naar dakterras (2023)
• Gasverwarming, CV ketel voor warm water en radiatoren 
• Led verlichting ingebouwd in plafondbeplating
• Waterdrukpomp

Woonkamer:
• Tafel met luxe stoelen
• Stuurstand 
• Radiator
• TV - aansluiting
Keuken:
• keuken kasten en hangkasten en allemaal extra plankjes en inclusief luxe spullen
• 4 pits gas kookplaat 
• Koelkast met vriezer (ingebouwd)
• Spoelbak met kraan voor koud en warm water

Eerste slaapkamer:
• Tweepersoonsbed
• kledingkast
• radiator

Tweede slaapkamer:
• uitschuifbed zie foto
• kledingkast
• radiator

Badkamer:
• Douche warm / koud water
• Toilet met vermaler
• Wastafel met roestvrijstalen kraan
• CV ketel 
• Spiegel

Terras:
BBQ Weber
Terrasstoelen 4 x met houten tafel

Dakterras
Bekleed met rubberen waterafvoerende tegels
Twee stoelen 
Ligbed is te koop


Accommodatie
Overig:

Extra inrichting en spullen geschikt voor verhuur:

Keuken:
Messenblok
Druiprekje
Koffiemachine
Waterkoker
Servies voor 6 personen
Glazenset voor 6 personen
Pannen en potten
Plankje aan de muur
Gordijn voor raampje in de keuken

Livingroom
Mooie groene sofa
Planken aan de muur
Leeslamp
Extra stopcontacten achter tv aansluiting
Ethanol kachel
Stofzuiger

Badkamer
Handdoekenrek
Extra plankje
Toiletholder en borstel

Grote slaapkamer
Plank aan de muur
Rolgordijn

Tweede slaapkamer
Plank aan de muur
Rolgordijn
Uittrekbed voor 2 slaapplaatsen

Extra
Plissé gordijnen 
Verschillende decoraties
Beddegoed
ETC.
 

 

 


Motor, electra, water
Aantal identieke motoren: 2
Serienummer: 1049489 en 1049487
Overig:


 


Uitrusting
Overig:

Stootwillen, lijnen

De stootbalken zijn breder dan bij de standaard Campi 400.
Deze zijn 12 cm in plaats van 8 cm breed


Lees verder
Sluiten
Algemeen
  • Merk:Campi 400 Houseboat
  • Type:Met Ligplaats En Chartermogelijkheid
  • Conditie:used
  • Bouwjaar:2019
  • Lengte (m):12.56
  • Breedte (m):4.00
  • Diepgang (m):0.55
  • Ligplaats:Warns
Foto: Campi 400 Houseboat Met Ligplaats En Chartermogelijkheid Bekijk alle foto's

Kenmerken Campi 400 Houseboat Met Ligplaats En Chartermogelijkheid

Basisinformatie


Merk: Campi 400 Houseboat
Type: Met Ligplaats En Chartermogelijkheid
Lengte (m): 12.56
Breedte (m): 4.00
Diepgang (m): 0.55
Conditie: used
Bouwjaar: 2019
Prijsstelling: prijsopaanvraag
Rompmateriaal: other
Verkoopplaats: Warns
Land: NL

Specificaties


Bootnaam: Happy
Passagiers capaciteit: 12
Laatse refit: 2024
Waterverplaatsing: 8500 kg

Motorgegevens


Aantal motoren: 2
Merk: 2 x 9,9 pk Yamaha motoren
Brandstof: N.v.t.
Boegschroef: Ja
Hekschroef: Ja

Uitrusting


Accu: Ja
Omvormer: Ja
Akku: Ja

Interieur


Slaapplaatsen: 4
Bad: Ja
Toilet: Ja
Douche: Ja
Koelkast: Ja
Vriezer: Ja
Type interieur:
DVD speler: Ja
Audiovoorziening: Ja
Airconditioning: Ja
Oven: Ja
Verwarming: Ja
Magnetron: Ja
Televisie: Ja

Exterieur



Navigatie / Elektronika


Dieptemeter: Ja
GPS: Ja
Kaartplotter: Ja
Kompas: Ja
Marifoon / VHF: Ja
Navigatieverlichting: Ja
Radar: Ja
Snelheidsmeter: Ja
Stuurautomaat: Ja
Windmeter: Ja

Veiligheids uitrusting


Meer informatie

Wil je meer informatie over deze advertentie, neem dan contact op met de aanbieder op via onderstaand contactformulier.

Ongeldig e-mailadres
Vul verplichte velden in
Deze site wordt beschermd door reCAPTCHA en de Google Privacybeleid en Servicevoorwaarden zijn van toepassing.

Scheepsmakelaardij Goliath

Hendrik Bulthuisweg 2

8606 KB Sneek

Friesland / Nederland

Ga naar de website

Toon aanbod van Scheepsmakelaardij Goliath

© 1996 - 2026 YachtOnline.nl is een activiteit van Yachtonline.nl powered by webwerk.nl